Home
|
About Us
|
Step by step
|
Bulgarian information
|
Visa information
|
Useful links
|
Contacts
|
Own construction
Deal types
For sale
Lettings
Property by type
Apartments
Investment project
Property by Location
Along the coast
Near the coast
In town
In village
SPA resort
Near SPA resort
In mountain area
In ski resort
Near ski resort
Information
Mortgages
Contacts
STIL 21
5,Kiril and Metodiy Str., fl.1
Burgas 8000, Bulgaria
tel: +359 56 844622
fax: +359 56 845657
mob: +359 896 742052 - Dimitar Milev, Director
mob: +359 896 772488 - Vera Vardareva, Marketing and sales department
e-mail: still21.ltd@gmail.com
Contact person: Dimitar Milev
skype: stil21ltd
Property № : ESPRNT
Apartments in 50m from the beach
Pricelist
Download :
1300104414_copy_of_esperanto_pricelist_08.03_bez_magazini.xls
4 floor
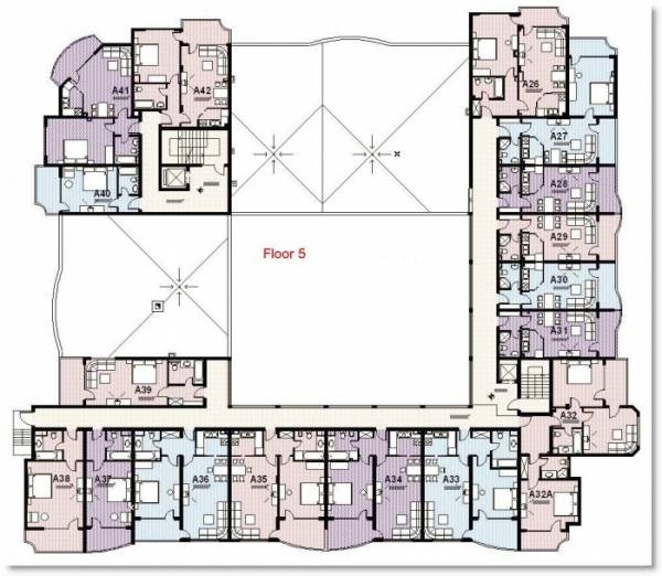
5 floor
6 floor
Search for property
Property №
Property Type
--ALL--
Apartments
Business
Development land
Hotels
Houses
Houses at shell stage
Investment project
Off plan
Old rural houses
Regulated land
Ski chalets
Unregulated land
Villas
Property by: Location
--ALL--
Along the coast
Near the coast
In town
In village
SPA resort
Near SPA resort
In mountain area
In ski resort
Near ski resort
Town
--ALL--
Bachevo
Bansko
Batak
Burgas
Elenite
Kosharitza
Nessebar
Primorsko
Ravda
Sozopol
Sunny beach
Sveti Vlas
Deal types
--ALL--
For sale
Lettings
from
to
EUR
Search
News
Information
Partners
copyrights